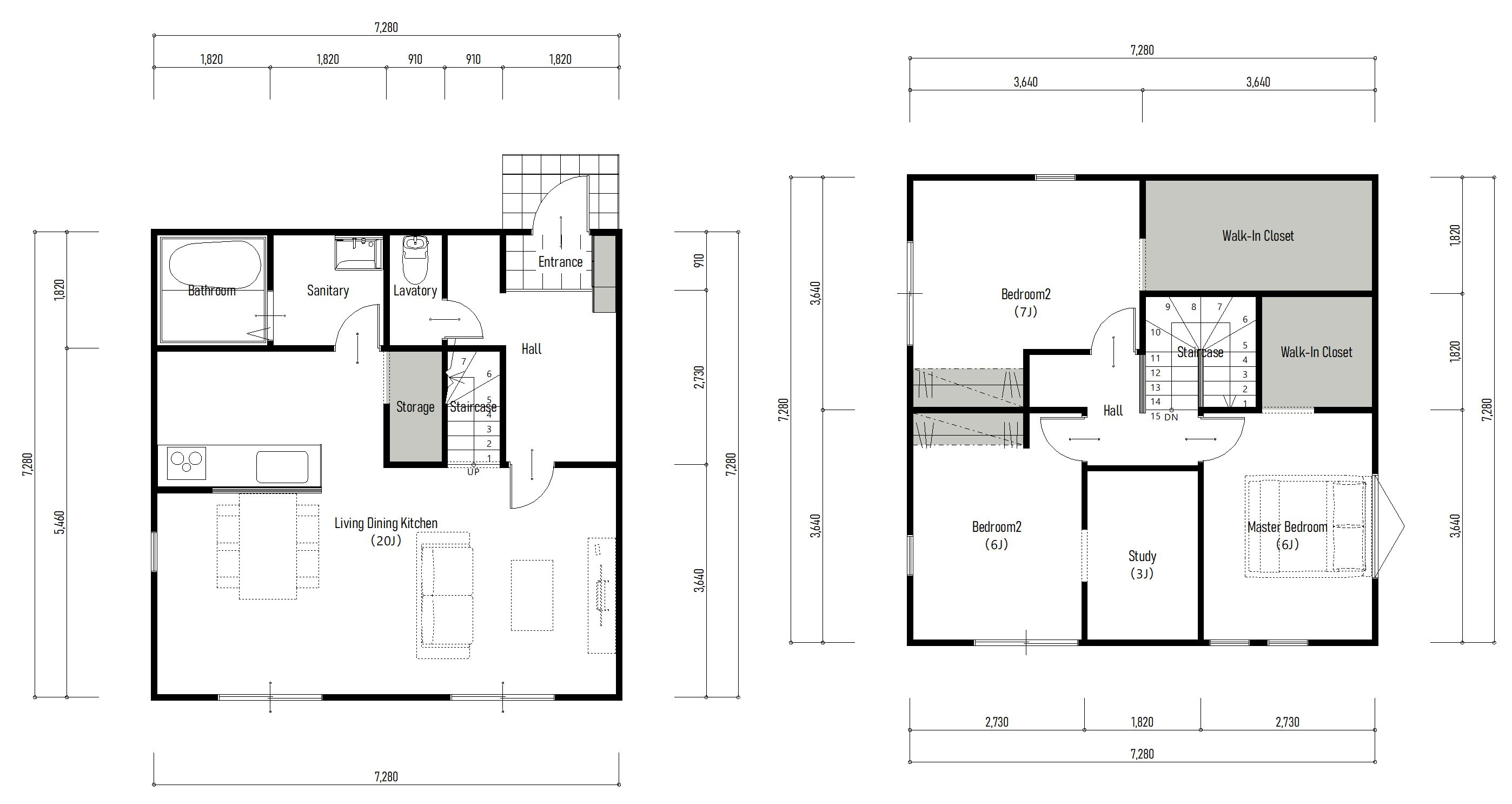
33坪Plan1
3LDK
プラン情報
| プラン名 | 33坪Plan1 |
|---|---|
| 月々金額※1 | 42,616円(税込) |
| 建物本体価格※2 | 1,820万円(税込) |
※1 頭金0円/支払い40年/ボーナス払いなし/変動金利0.595%の場合の月々返済額
※2 金額は付帯工事・オプション価格を含まない建物本体価格です
※ 掲載している価格は2023年3月時点の金額です。建材の価格変動等により予告なく金額が変わる場合がございますので詳しくはお問合せください
※2 金額は付帯工事・オプション価格を含まない建物本体価格です
※ 掲載している価格は2023年3月時点の金額です。建材の価格変動等により予告なく金額が変わる場合がございますので詳しくはお問合せください




