ホーム > Plan > 29坪Plan1

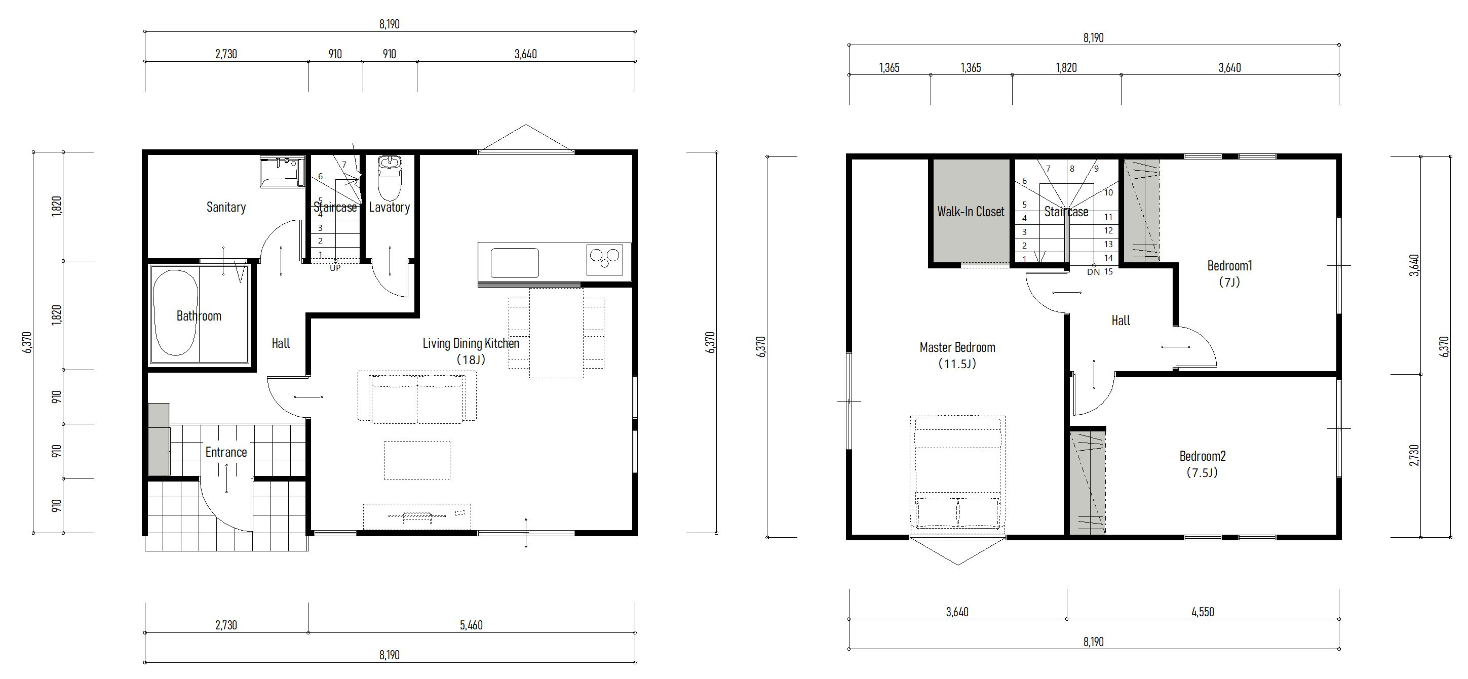
29坪Plan1

3LDK

29坪Plan1 29坪Plan1

プラン情報

プラン名 29坪Plan1
月々金額※1 38,636円(税込)
建物本体価格※2 1,650万円(税込)
※1 頭金0円/支払い40年/ボーナス払いなし/変動金利0.595%の場合の月々返済額
※2 金額は付帯工事・オプション価格を含まない建物本体価格です
※ 掲載している価格は2023年3月時点の金額です。建材の価格変動等により予告なく金額が変わる場合がございますので詳しくはお問合せください
  • 資料請求
  • 来場予約
  • 資料請求
  • 来場予約

この記事を書いた人